²úÆ·¼ò½é£ºJD-QC6СÐÍ×Ô¶¯ÆøÏóÕ¾ÊÇͨ¹ý´«¸ÐÆ÷¼à²âÇéÐεÄÒªËØÐÅÏ¢£¬£¬£¬£¬£¬½¨ÉèµÄÄܹ»×Ô¶¯Ì½²â¶à¸öÒªËØ£¬£¬£¬£¬£¬ÎÞÐèÈ˹¤¸ÉÔ¤£¬£¬£¬£¬£¬¼´¿É×Ô¶¯ÌìÉú±¨ÎÄ£¬£¬£¬£¬£¬×¼Ê±ÏòÖÐÐÄÕ¾´«Êä̽²âÊý¾ÝµÄÆøÏóÕ¾¡£¡£¡£¡£
Ò»¡¢²úÆ·¼ò½é
¡¡¡¡JD-QC6СÐÍ×Ô¶¯ÆøÏóÕ¾ÊÇͨ¹ý´«¸ÐÆ÷¼à²âÇéÐεÄÒªËØÐÅÏ¢£¬£¬£¬£¬£¬½¨ÉèµÄÄܹ»×Ô¶¯Ì½²â¶à¸öÒªËØ£¬£¬£¬£¬£¬ÎÞÐèÈ˹¤¸ÉÔ¤£¬£¬£¬£¬£¬¼´¿É×Ô¶¯ÌìÉú±¨ÎÄ£¬£¬£¬£¬£¬×¼Ê±ÏòÖÐÐÄÕ¾´«Êä̽²âÊý¾ÝµÄÆøÏóÕ¾¡£¡£¡£¡£
¡¡¡¡ÓÉÆøÏó´«¸ÐÆ÷¡¢ÆøÏóÊý¾ÝÊÕÂÞÒÇ¡¢µçԴϵͳ¡¢·À»¤ÏäºÍÆøÏóÊÓ²ìÖ§¼Ü¡¢Í¨Ñ¶Ä£¿£¿£¿£¿éµÈ²¿·Ö×é³É¡£¡£¡£¡£Äܹ»ÓÃÓÚ¶Ô·çËÙ¡¢·çÏò¡¢ÓêÁ¿¡¢¿ÕÆøÎ¶ȡ¢¿ÕÆøÊª¶È¡¢¹âÕÕÇ¿¶È¡¢ÍÁÈÀζȡ¢ÍÁÈÀʪ¶È¡¢Õô·¢Á¿¡¢´óÆøÑ¹Á¦µÈÆøÏóÒªËØ¾ÙÐÐÈ«ÌìºòÏÖ³¡¼à²â¡£¡£¡£¡£¿£¿£¿£¿Éƾ֤¿Í»§ÐèÇ󣬣¬£¬£¬£¬Ìí¼ÓÏìÓ¦ÐèÒª¼à²âµÄ²ÎÊý´«¸ÐÆ÷¡£¡£¡£¡£¿£¿£¿£¿ÉÒÔͨ¹ýרҵÅäÌ×µÄÊý¾ÝÊÕÂÞÒÇÓëÈí¼þƽ̨¾ÙÐÐÅþÁ¬£¬£¬£¬£¬£¬½«Êý¾Ý´«Êäµ½Èí¼þƽ̨Êý¾Ý¿âÖУ¬£¬£¬£¬£¬ÓÃÓÚͳ¼ÆÆÊÎöºÍ´¦Öóͷ££¬£¬£¬£¬£¬ÆÕ±éÓ¦ÓÃÓÚ¹¤Å©ÒµÉú²ú¡¢ÂÃÓΡ¢¿ÆÑС¢ÆøÏóµÈ¶¼»áÇéÐμà²â¡£¡£¡£¡£
¶þ¡¢²úÆ·ÌØµã
1¡¢µÍ¹¦ºÄÊÕÂÞÆ÷£º¾²Ì¬¹¦ºÄСÓÚ50uA
2¡¢±êÅäGPRSÁªÍø¡¢Ö§³ÖÀ©Õ¹À¶ÑÀ¡¢ÓÐÏß´«Êä
3¡¢7´ç°²×¿´¥ÆÁ£¬£¬£¬£¬£¬°æ±¾£º4.4.2¡¢ËĺËCortex?-A7£¬£¬£¬£¬£¬512M/4G£¨Ñ¡Å䣩
4¡¢Ö§³Ömodbus485´«¸ÐÆ÷À©Õ¹
5¡¢Ì«ÑôÄܳäµçÖÎÀíMPPT×Ô¶¯¹¦Âʵã¸ú×Ù
6¡¢ÈýÃ×̼¸ÖÖ§¼Ü£¬£¬£¬£¬£¬Á½½Ú·¨À¼Å̶ԽÓ
7¡¢¶ÌÐű¨¾¯£¬£¬£¬£¬£¬³¬ÏÞºóÏòÖ¸¶¨µÄÊÖ»úÉÏ·¢ËͶÌÐÅ
8¡¢ABS²ÄÖÊ·À»¤Ï䣬£¬£¬£¬£¬ÄÍÇÖÊ´¡¢¿¹Ñõ»¯£¬£¬£¬£¬£¬·ÀˮƷ¼¶IP66
Èý¡¢ÊÖÒÕ²ÎÊý
1)ÊÕÂÞÆ÷¹©µç½Ó¿Ú£ºGX-12-3P²åÍ·£¬£¬£¬£¬£¬ÊäÈëµçѹ5V£¬£¬£¬£¬£¬´øRS232Êä³öJsonÊý¾ÝÃûÌÃ,ÊÕÂÞÆ÷¹©µç£ºDC5V¡À0.5V·åÖµµçÁ÷1A,
2)´«¸ÐÆ÷modbus¡¢485½Ó¿Ú£ºGX-12-4P²åÍ·£¬£¬£¬£¬£¬Êä³ö¹©µçµçѹ12V/1A,×°±¸ÉèÖýӿڣºGX-12-4P²åÍ·£¬£¬£¬£¬£¬ÊäÈëµçѹ5V
3)Ì«ÑôÄܹ©µç¡¢ÉèÖÃǦËáµç³Ø£¬£¬£¬£¬£¬¿ÉÑ¡Åä30W 20AH/50W 40AH/100W 100AH.³äµç¿ØÖÆÆ÷£º150W£¬£¬£¬£¬£¬MPPT×Ô¶¯¹¦Âʵã¸ú×Ù£¬£¬£¬£¬£¬Ð§ÂÊÌá¸ß20%
4)Êý¾ÝÉÏ´«¾àÀ룺¿Éµ÷
5)7´ç°²×¿´¥ÆÁ£¬£¬£¬£¬£¬ÆÁÄ»³ß´ç£º1024*600 RGB LCD£¨Ñ¡Å䣩
6)²¿·Ö´«¸ÐÆ÷²ÎÊý
Ãû ³Æ | ÕÉÁ¿¹æÄ£ | ·Ö ±æ ÂÊ | ×¼ È· ¶È |
ÇéÐÎÎÂ¶È | -40¡«+60¡æ | 0.01¡æ | ¡À0.3¡æ |
Ïà¶Ôʪ¶È | 0¡«100%RH | 0.1% | ¡À3% |
¹âÕÕÇ¿¶È | 0-200000Lux | 1Lux | ¡À2% |
´óÆøÑ¹Á¦ | 300-1100hpa | 0.1hPa | ¡À0.3hPa |
¶µãÎÂ¶È | -20~+50¡æ | 0.1¡æ | ¡À0.5¡æ |
ÍÁÈÀÎÂ¶È | -50¡«+80¡æ | 0.1¡æ | ¡Ü¡À0.2¡æ |
ÍÁÈÀʪ¶È | 0¡«100% | 0.1% | ¡À2% |
ÍÁÈÀÑÎ·Ö | 0-20ms | ¡À0.1ms | ¡À2£¥ |
ÍÁÈÀPH | 0-14 | 0.1 | ¡À0.2% |
·ç¡¡Ïò | 0¡«360¡ã£¨16Æ«Ïò£© | 1/16 | <3¡ã(>1.0m/s) |
·ç¡¡ËÙ | 0¡«60m/s | 0.01m/s | ¡À(0.1+0.03V)m/s |
Óê Á¿ | ¨Q4mm/min | 0.01mm | ¡À0.2mm |
×ÏÍâ·øÉä | 0¡«70W/©O | 1W/©O | ¡À2% W/©O |
ÈÕÕÕʱÊý | 0¡«24h | 0.1 h | ¡À2£¥h |
×Ü·øÉä | 0-2000W/m2 | 0.1W/m2 | ¹âÆ×¹æÄ££º300-3000nm |
¹âºÏÓÐÓ÷øÉä | 400¡«700nm | Áé Ãô ¶È£º10¡«50¦Ìv/¦Ìmol¡¤m-2¡¤s-1 | |
7)Õû»úÈ¡µÃ¹ú¼ÒÆøÏó¼ÆÁ¿Õ¾Ð£×¼Ö¤Êé
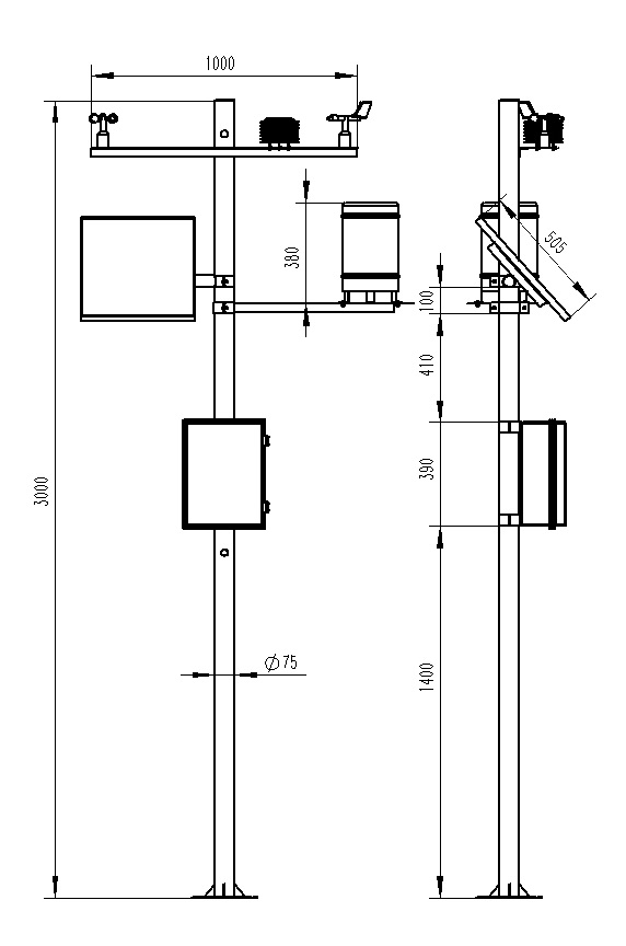
ËÄ¡¢²úÆ·³ß´çͼ

Îå¡¢²úÆ·½á¹¹Í¼

Áù¡¢ÉÏλ»úÈí¼þÏÈÈÝ
1¡¢PCµ¥»ú°æÊý¾ÝÎüÊÕ¡¢´æ´¢¡¢Éó²é¡¢ÆÊÎöÈí¼þ
2¡¢Ö§³Ö´®¿ÚÊý¾ÝÎüÊÕ¡¢´¦Öóͷ£¡¢Õ¹Ê¾
3¡¢Ö§³Öjson×Ö·û´®¡¢modbus485µÈͨѶ·½·¨
4¡¢¿É×ÔÉèÖô洢ʱ¼ä£¬£¬£¬£¬£¬modbus485ÊÕÂÞģʽÏ¿É×ÔÉèÖÃÊÕÂÞʱ¼ä
5¡¢Ö§³Ö×ÔÖúÔöÌí¡¢É¾³ý¡¢Ð޸ļà²â²ÎÊýµÄÐÒé¡¢Ãû³Æ¡¢Í¼±êµÈ
6¡¢Ö§³ÖÊý¾Ýºó´¦Öóͷ£¹¦Ð§
7¡¢Ö§³ÖÍâÖÃÔËÐÐjavascript¾ç±¾
Æß¡¢°²×¿APPÏÈÈÝ
1¡¢°²×¿µ¥»ú°æÊý¾ÝÎüÊÕ¡¢´æ´¢¡¢Éó²é¡¢ÆÊÎöÈí¼þ
2¡¢Ö§³ÖÀ¶ÑÀÊý¾ÝÎüÊÕ
3¡¢ÊÖ»úÐÝÃߺóÈí¼þºǫ́ÎüÊÕ¡¢´¦Öóͷ£
4¡¢jsonÊý¾Ý×Ô¶¯Ìí¼Ó×°±¸£¬£¬£¬£¬£¬modbus×°±¸Ö§³ÖɨÂëÌí¼Ó×°±¸
5¡¢Ö§³ÖÀúÊ·Êý¾ÝÉó²é¡¢ÆÊÎö¡¢µ¼³ö±í¸ñ£¬£¬£¬£¬£¬Ö§³ÖÇúÏßչʾ¡¢µ¥Êý¾ÝµãÉó²é¡£¡£¡£¡£
6¡¢Ö§³ÖÊý¾Ýºó´¦Öóͷ£¹¦Ð§
7¡¢Ö§³ÖÍâÖÃÔËÐÐjavascript¾ç±¾
°Ë¡¢ÔÆÆ½Ì¨ÏÈÈÝ
1¡¢CS¼Ü¹¹Èí¼þƽ̨£¬£¬£¬£¬£¬Ö§³ÖÊÖ»ú¡¢PCä¯ÀÀÆ÷Ö±½ÓÊӲ졢ÎÞÐèÌØÊâ×°ÖÃÈí¼þ¡£¡£¡£¡£
2¡¢Ö§³Ö¶àÕʺš¢¶à×°±¸µÇ¼
3¡¢Ö§³ÖʵʱÊý¾ÝÕ¹ÊÕ¬ëÀúÊ·Êý¾ÝչʾÒDZí°å
4¡¢ÔÆÐ§ÀÍÆ÷¡¢ÔÆÊý¾Ý´æ´¢£¬£¬£¬£¬£¬Îȹ̿ɿ¿£¬£¬£¬£¬£¬Ò×ÓÚÀ©Õ¹£¬£¬£¬£¬£¬¸ºÔØÆ½ºâ¡£¡£¡£¡£
5¡¢Ö§³Ö¶ÌÐű¨¾¯¼°ãÐÖµÉèÖÃ
6¡¢Ö§³ÖµØÍ¼ÏÔʾ¡¢Éó²é×°±¸ÐÅÏ¢¡£¡£¡£¡£
7¡¢Ö§³ÖÊý¾ÝÇúÏ߯ÊÎö
8¡¢Ö§³ÖÊý¾Ýµ¼³ö±í¸ñÐÎʽ
9¡¢Ö§³ÖÊý¾Ýת·¢£¬£¬£¬£¬£¬HJ-212ÐÒ飬£¬£¬£¬£¬TCPת·¢£¬£¬£¬£¬£¬httpÐÒéµÈ¡£¡£¡£¡£
10¡¢Ö§³ÖÊý¾Ýºó´¦Öóͷ£¹¦Ð§
11¡¢Ö§³ÖÍâÖÃÔËÐÐjavascript¾ç±¾